This project take place by the adriatical cost in Puglia, in southern Italy.
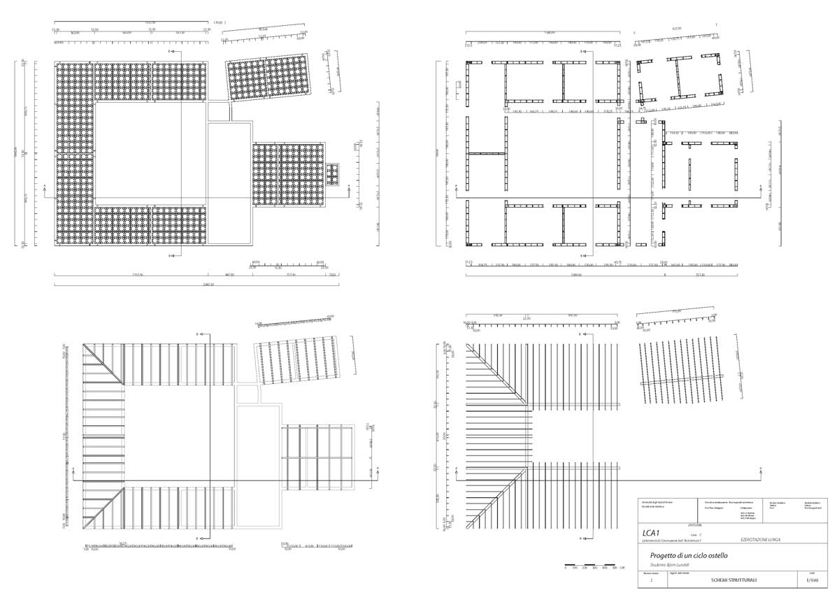
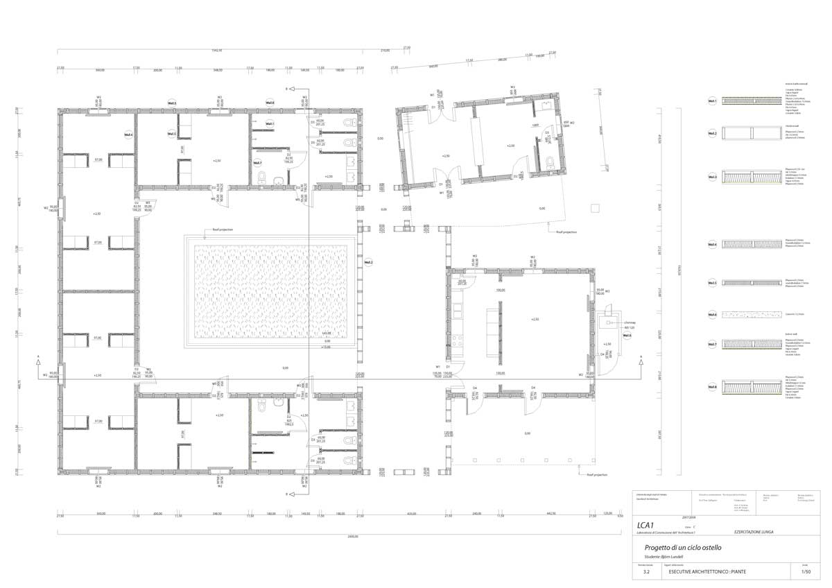
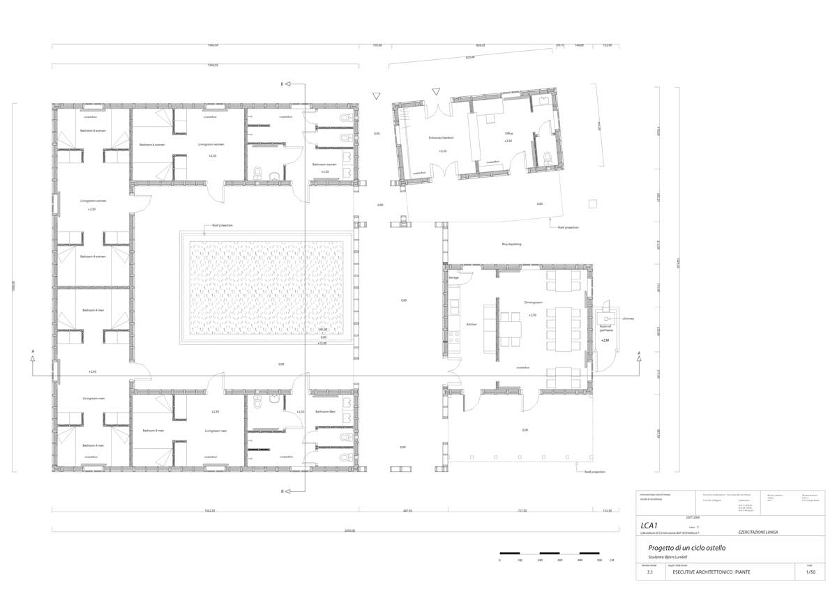
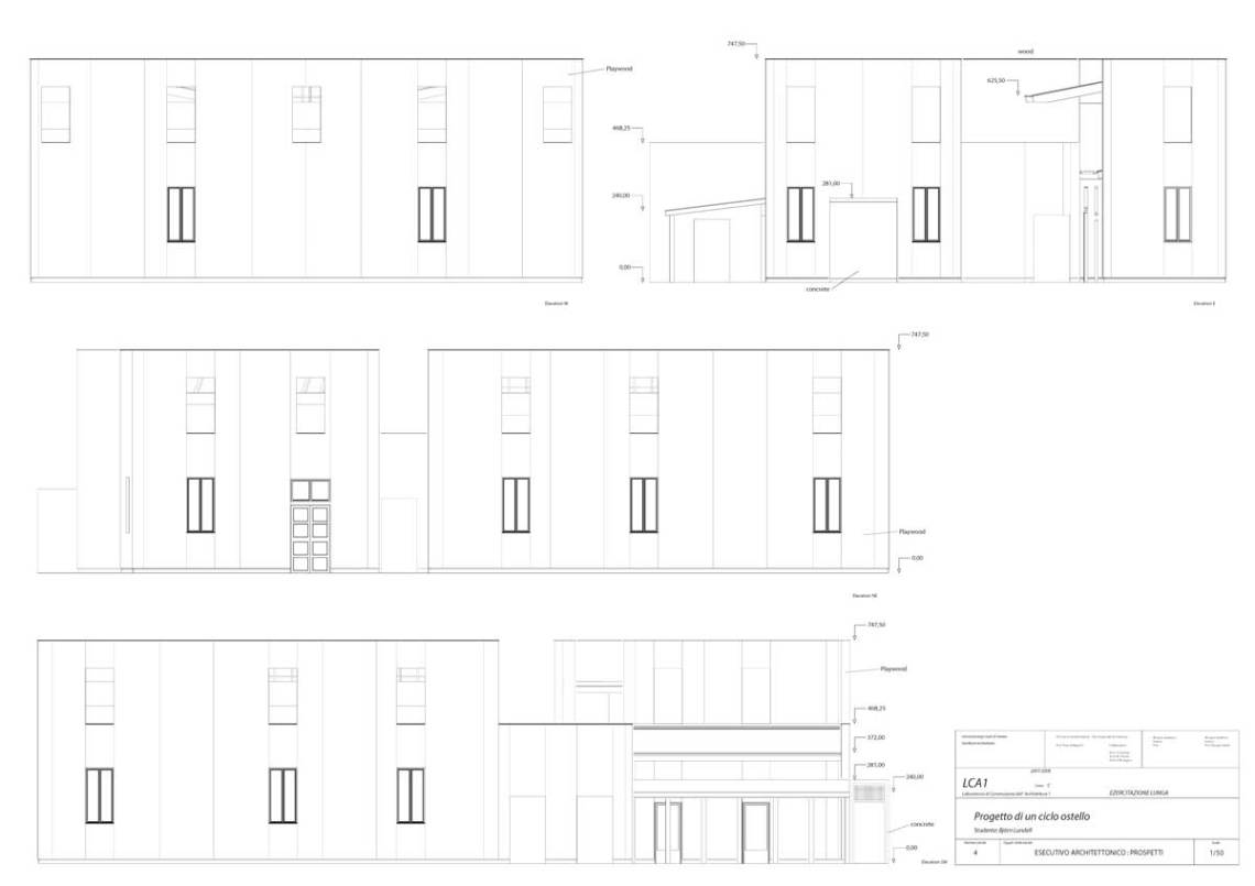
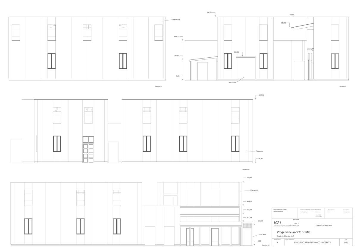
Puglia has a mediterian climat. that means it has a dry hot summer and a mild vinter. I choosen to make a closed bulding with a courtyard similar to an atrium. The entranses to the bedrooms and bathrooms facing the courtyard. The courtyard is intendet to be a place were people can meet and sitdown and speak, with there feets in the water of the basin. this atrium is the main conection with the surounding natur. The high walls and the roof make shadows to protect the courtyard from the sun in the middle of the day. The oppening in the walls is to let sunlight in, to have a mix of light and shadow in the morning and in the evening. Placed high to not make the courtyard windy. the material of foundation is concret. and the construction is wood. inside the platforms there is isolation, mainly to keep the heat out in the summers, but also the cold in the winter. the bicykles will be parked outside, because there is not raining very much in this region. The material of the fasad is playwood protected from climat by oil. The intension is to make the building become lightgrey in some years.








